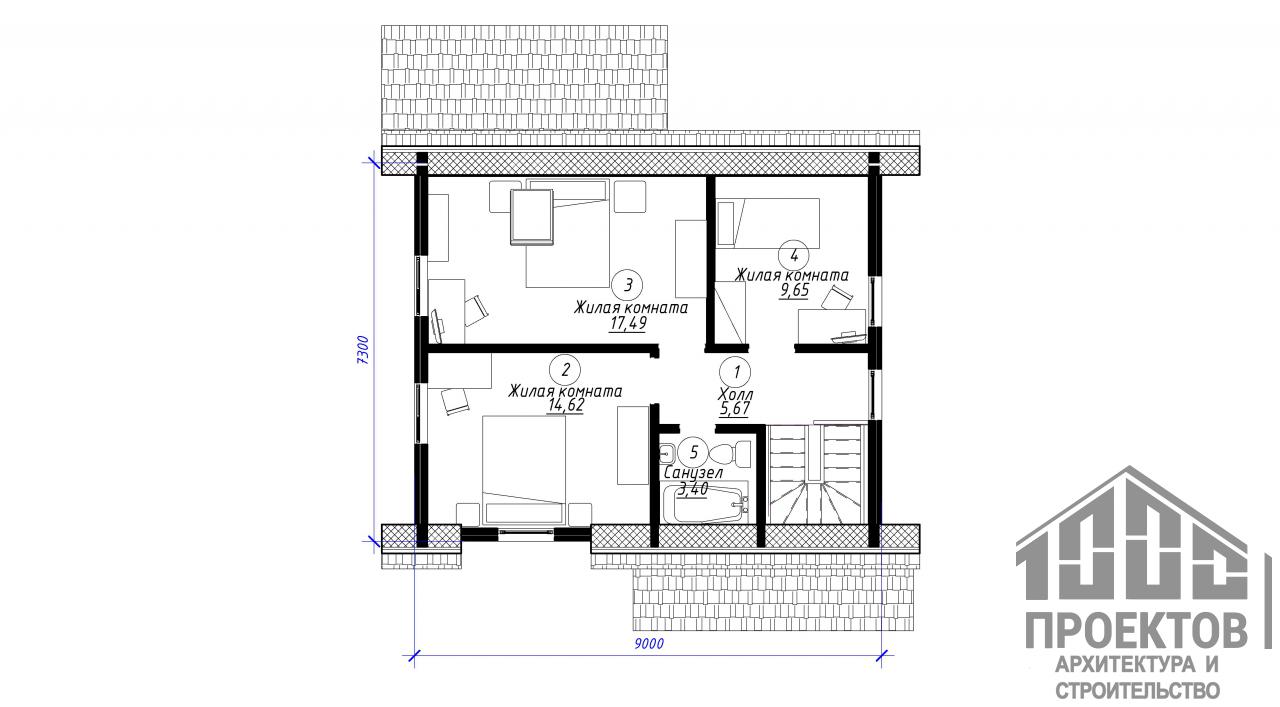
Проект каркасного дома площадью 108.54 м2. В доме один этаж с мансардой, где находятся просторная гостиная, совмещенная с кухней, 3 жилых комнаты, гардеробная, 2 санузла и 2 комфортабельные террасы.
Фундамент – свайно-ростверковый
Материал стен – «каркасного типа»
Перекрытия – по деревянным балкам
Покрытие кровли -металлочерепица
Фундамент
Свайно-ростверковый с черновой стяжкой
Терраса-черновая стяжка
Крыльца
Каркас
Обрезной пиломатериал тех сушки: стены 45*145 мм, перекрытия 45*195 мм, перегородки 45*95 мм, стропила 45*195 мм
Утепление
Утепление минеральной ватой
Контр. утепление фасада 50мм
Кровля
Металлочерепица
Наружная отделка
По проекту
Внутренняя отделка
Без внутренней отделки
Окна
ПВХ. Двухкамерный стеклопакет
Дверь входная
Металлическая, утепленная
Коммуникации
гильзы ввода электричества и воды
канализационный лежак под стяжкой
монтаж системы отопления(теплые полы- 1 этаж, радиаторы- мансардный этаж)
монтаж труб внутренних систем водоснабжения и канализации